Ferienwohnungen in der Alten Brüterei
Norgaardholz

Grundrisse

Hier sieht man den Grundriss der unteren Etage. Links ist also die EG-Wohnung links und auf der rechten Hälfte, die EG-Wohnung rechts.

Grundriss unten

Übrigens ist das Badezimmer in der Wohnung links inzwischen renoviert worden und darum etwas anders angeordnet. Die Badewanne ist durch eine Dusche ersetzt worden.

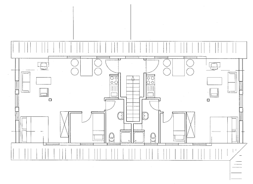
Die obere Etage ist schon durch das Reetdach etwas kleiner. Grundriss oben


Zur Hauptseite